Create your free site plan with Mesocore
Unlock the Potential of Your Property - With a Free Site Plan!
Thinking About Adding a Mesocore ADU to Your Property? Before You Commit, We Offer Something Invaluable — a Free Custom Site Plan That Takes the Guesswork Out of Your Decision.
Why a Site Plan Matters
Building an Accessory Dwelling Unit (ADU) Isn't just about choosing the right home It's about understanding whether your land can support it. That's where our complimentary site plan comes in.
With this plan, we'll:
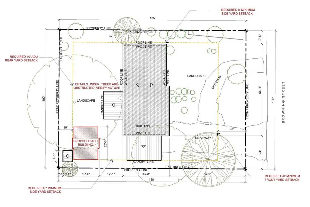
Assess Feasibility: Determine whether an ADU can be bullt on your specific property based on size, shape, topography, and access.
Verify Local Zoning Requirements. Every city and county has its own rules. We'll identify applicable setbacks, height limits, lot coverage ratios, and other restrictions so you know what's allowed before you invest time or money.
Avoid Costly Surprises: Learn about potential red flags early (like easements, utility conflicts, or permitting challenges) saving you thousands down the line.
Visualize the Fit: Our plan helps you picture exactly where your Mesocore ADU could go, and how it will look and function in your backyard.
The Mesocore site plan is more than a drawing it's your first step toward clarity, confidence, and compliance. And best of all, we offer it free of charge, because we believe informed customers make the best decisions.
Peace of Mind Before You Build
Tell us where you'd like the ADU! Just enter your property address and give us a rough idea of the preferred location like "back left corner of the backyard' or 'side yard near the driveway. We'll use this to prepare your free, personalized site plan. Site plan lakes about 2 days to complete.

